В центре Йошкар-Олы на неделю ограничат движение
- 11:39 12 декабря
- Святослав Данилов

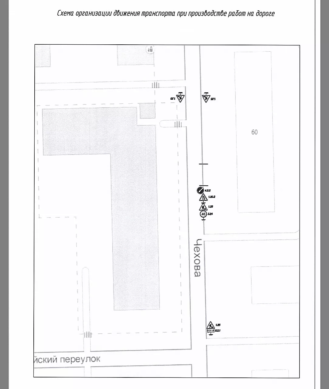
Администрация Йошкар-Олы уведомила жителей о временных ограничениях на проезд и парковку транспортных средств по нескольким адресам в декабре 2025 года. В частности, с 12 по 19 декабря будет ограничено движение всех транспортных средств по улице Чехова в районе дома 60. Меры связаны с проведением работ по прокладке сетей водоснабжения.
Ограничения затронут весь транспорт, который обычно следует по этому участку улицы Чехова, в том числе личные автомобили горожан. Водителям рекомендуется заранее продумывать маршруты, пользоваться возможными объездами и обращать внимание на временные схемы организации движения. В этот период проезд и маневрирование в районе дома 60 будут существенно затруднены.

Ранее в уведомлении также указано, что с 20 часов 11 декабря до 20 часов 12 декабря будет запрещен въезд всех транспортных средств на парковку к дому 26Б по Ленинскому проспекту, кроме участников мероприятия.